Dettaglio Immobile

Rif. immobile: 4039vmpre

Terreno vista mare in vendita a Carovigno (Brindisi) in Puglia

Dettagli

  • Stato al rogito: Novita'
  • Superficie Immobile: 156 mq
  • Superficie Terreno: 10.741 mq
  • Vani: 6
  • Camere da letto: 3
  • Cucina: 1
  • Bagni: 2
  • Piano: Più livelli
  • Classe energetica: ESENTE
  • Stato immobile: Da ristrutturare

Descrizione

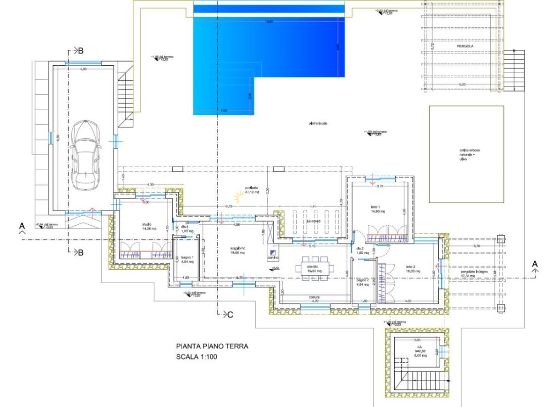
Terreno Edificabile Vista Mare con Progetto Approvato a Carovigno

Quest'opportunità d’investimento riguarda un ampio lotto di terreno situato nelle prestigiose campagne di Carovigno, in una posizione dominante che assicura una vista mare. Il sito dista soli 4 km dalle spiagge e rappresenta la base ideale per la realizzazione di una residenza di lusso indipendente. La proprietà viene valorizzata da un progetto architettonico già definito, che prevede una fusione tra volumi moderni e stile mediterraneo, minimizzando i tempi di attesa per l'avvio del cantiere. 

Spazi Interni (da Progetto)

  • Zona giorno open space con ampio salone e area pranzo luminosa.

  • Tre camere da letto spaziose, progettate per garantire privacy e comfort termico.

  • Doppi servizi con layout contemporaneo e finiture di alto livello previste da capitolato.

  • Cantina al piano seminterrato di circa 30 mq, ottimale come deposito o locale tecnico per gli impianti.

Spazi Esterni e Pertinenze

  • Piscina privata di 40 mq con area solarium, posizionata per massimizzare l'esposizione solare e la vista.

  • Porticato strutturale ideale per la creazione di un living outdoor protetto.

  • Pergolato ombreggiante per zone pranzo esterne in totale sinergia con il giardino circostante.

  • Lotto di terreno agricolo caratterizzato dalla presenza di ulivi e vegetazione autoctona

Continua a leggere

Caratteristiche

Ubicazione

72012 - Carovigno (Brindisi)

P Visualizza Mappa

  • Costa: 4 Km
  • Ospedale: 20 Km
  • Ferrovia: 9 Km
  • Aeroporto: 22 Km
  • Centro: 8 Km

Video

Richiedi informazioni in Rif. all'immobile 4039vmpre












Loading...
Alto Salento Immobiliare
Invia una richiesta
Support